PIM Syndic Agence
Télécharger la fiche

Appartement 2 pièce(s) 1 chambre(s) 56 m²

Vallauris (06220)
90 000 € Référence 3020

A propos de ce bien

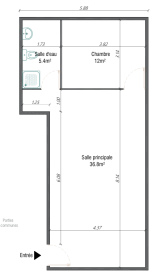
A proximité de la place de la mairie de Vallauris, dans un immeuble de caractère, venez découvrir un local d'environ 56m². Celui-ci est situé au rez-de-chaussez de l'immeuble avec entrée indépendante sur la rue et dans les parties communes. Aujourd'hui le local est complètement nu, tout est à créer. Hauteur sous plafond de 3.50m. Possibilité de transformer le local en appartement. Location saisonnière autorisée dans la copropriété. Soumis au régime de copropriété. Charges annuelles de 500€. Honoraires charge vendeur. Pour plus d'informations, n'hésitez pas à contacter PLANET IMMOBILIER.

Caractéristiques de ce bien

  • Surface 56 m²
  • carrez 55,96 m²
  • séjour 36 m²
  • 1 chambre(s)
  • 1 salle(s) d'eau
  • construit en 1950
  • cuisine
  • Chauffage individuel : autre (autre)
  • exposition Est
  • 2 étage(s)
  • vue Citadine

Diagnostics énergétiques

Consommation énergétique
A B C D E F G
Emission de gaz à effet de serre
A B C D E F G
DPE non concerné

Informations financières

Prix de vente honoraires TTC inclus 90 000 €
Charges 42 €

Informations de copropriété

Copropriété Oui
Lot n° 2
Nombre de lots 4
Quote part annuelle des charges 500 €

Calcul des mensualités

* Champs obligatoires